图标
使用说明
该插件仅可在“剖面(Section)”和“立面(Elevation)”类型的视图中运行。
插件的工作原理是创建配置
,这些配置描述了为三类注释元素生成规则——尺寸标注、标高注记、编号(标识)。

窗口顶部为配置下拉列表。列表右侧提供以下按钮:
– 编辑当前配置的名称并添加描述。
– 复制当前配置。
– 导出当前配置。点击后会打开对话框,选择将配置保存为 XML 文件的路径。
– 导入配置。点击后会打开对话框,选择要加载的用户配置的 XML 文件。
– 永久删除所选配置。
下方是注释生成规则设置的各组(后文详述)。
窗口底部有两个用于生成注释的按钮:

处理所有元素 – 将处理当前视图中的所有元素。此选项适用于局部剖面。
处理选定元素 – 仅处理当前视图中已选的元素。此选项适用于只需处理大型剖面的一部分的情况。点击后需选择元素的选择方式:框选 或 逐个选择。
插件也支持预先选择的元素。在这种情况下,窗口底部会出现按钮 处理预先选择的元素。
在以上三种情况下,只有被勾选的注释生成规则组及其子组会被处理。
显示注释生成错误 – 启用此选项后,所有在尝试创建注释时发生的错误将显示在结果窗口中,并列出未处理元素的标识符。
删除先前创建的注释 – 启用此选项后,将删除与当前生成的注释属于同一组的先前创建的注释。
三组注释规则设置具有相同的结构:每组中需为特定元素类别添加规则子组:

每组中还有通用设置,可在各子组中重用。
在所有组和子组中,选项 偏移自 用于定义注释生成的起算点。如果选择 元素 或 所有元素,则起算点从围绕元素几何体绘制的矩形边界开始计算。
如果在组中的 类型 和 偏移自 字段中选择了“使用通用设置”,则会应用该组的通用设置。
每组右上角有一个按钮
,可将该组设置展开至窗口全宽。
通用设置 将尺寸合并为链 为已创建的尺寸添加后处理:如果尺寸线在同一条直线上,则将这些尺寸合并为一个尺寸链。

元素几何中心 – 启用后尝试在几何中心创建尺寸。建议在明确的情况下使用,例如对“墙”类别创建水平尺寸,或对“楼板/板”类别创建垂直尺寸。
轴网参照、标高参照 – 启用后,将在创建尺寸时使用与尺寸线垂直的轴线或标高。
对于类别“承载钢筋(剖面)”提供以下附加选项:
- 创建 – 允许选择注释方式:尺寸 或 多钢筋注释。
- 显示相等公式 – 允许合并步距相同的尺寸段。
对于“风管”、“电缆桥架”和“管道”类别,可使用其他选项:
- 轴线 — 启用该选项后,将在剖面和视图中创建元素的轴线尺寸。
- 总体 — 启用该选项后,将在视图中创建元素的外形尺寸。
例如,需要为墙设置向下的水平尺寸(从元素偏移并绑定轴线),并为窗户设置向左的垂直尺寸(从视图裁剪边界偏移)。
在插件窗口的 尺寸 组中设置如下:

点击 处理所有元素 ,结果如下:


替代的尺寸类型 – 当视图按当前比例计算时,两标注之间的距离小于字段 如果小于 中设置的值时,将使用此备用类型。
对于“楼板/板”类别提供以下附加选项:
- 上下表面使用不同类型 – 启用后,上表面和下表面分别使用 类型 和 替代的尺寸类型 。
- 标注标高: – 选择标注方式:在顶面和底面、仅在顶面、仅在底面。
对于“风管”、“电缆桥架”和“管道”类别,可使用其他选项:
- 轴线 — 启用该选项后,将在剖面和视图中创建元素的轴线标高。
- 总体 — 启用该选项后,将在视图中创建元素的外形标高。
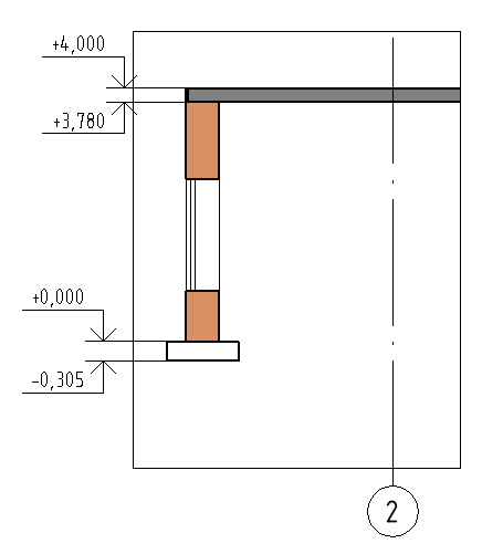
例如,需要为楼板和基础设置标高注记。选择它们并运行插件。在 高程点 组中设置如下:

点击 处理预先选择的元素 并得到:

每个处理元素类别都必须为编号(标识)指定标注类型。

编号引出线的末端会放置在被处理元素几何体的中间,或放置在最接近几何中点的点上。
对于“承载钢筋”类别存在后处理:如果编号排成一行,并且对具有相同标注类型和相同编号值的钢筋进行了标注,则只保留其中一个生成的编号。
例如,需要为左侧自由端的窗设置编号并从元素偏移。在 标记 组中设置如下:

点击 处理选定元素,然后选择 逐个选择,在视图中选中所需窗,点击 Revit 功能区的“完成”,得到:
