Complemento le permite realizar varias opciones para acotar elementos en plano						
						
						
							
Icono
Descripción
El complemento crea:
Uso
Ventana de diálogo del complemento:

En la parte izquierda se selecciona la pestaña para la acotación.
La parte derecha contiene la configuración para la pestaña seleccionada.
Para iniciar el trabajo del complemento, es necesario hacer clic en el botón Continuar. Luego, con un marco de selección, hay que elegir los elementos que requieren acotación.

La ventana de configuración contiene los siguientes controles:
- Acotar ejes – al activar esta opción será necesario seleccionar los ejes a los que se asociarán las cadenas de cotas.
 
- Acotar huecos – al activar esta opción se crearán cotas para los huecos del muro procesado.
 
- Desfase de la cadena de cotas – define el desfase de la cadena de cotas respecto a la superficie de los muros.
 
- Procesar muros con un grosor a partir de … mm – establece el valor para filtrar los muros antes del procesamiento. Permite excluir acabados cuando estos se realizan con muros.
 
Para una configuración más flexible es posible excluir ciertos elementos:
- Excluir del procesamiento muros cuyo nombre de tipo contenga – excluye muros cuyo nombre de tipo contenga el valor introducido en la línea. No distingue mayúsculas/minúsculas. Se pueden indicar varios valores separados por comas.
 
- Excluir del procesamiento cuyo nombre del material para "Estructura" contenga – excluye muros cuyo nombre del material de la capa "Estructura" contenga el valor introducido en la línea. No distingue mayúsculas/minúsculas. Se pueden indicar varios valores separados por comas.
 
Con 
 se puede obtener ayuda para introducir valores en la línea directamente en la ventana del complemento.
Solo se procesan elementos mutuamente perpendiculares que no tengan segmentos en arco en su geometría.
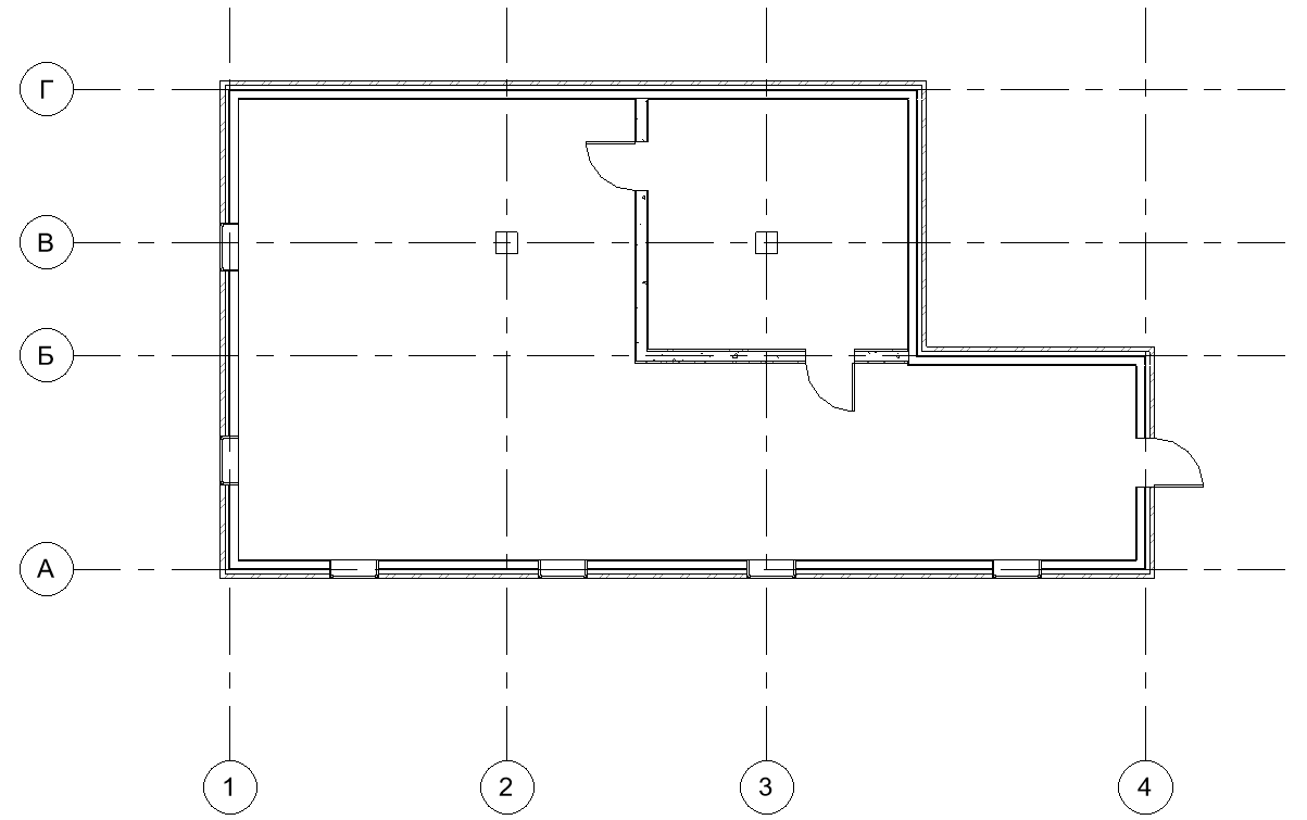
Antes de la acotación con el complemento:

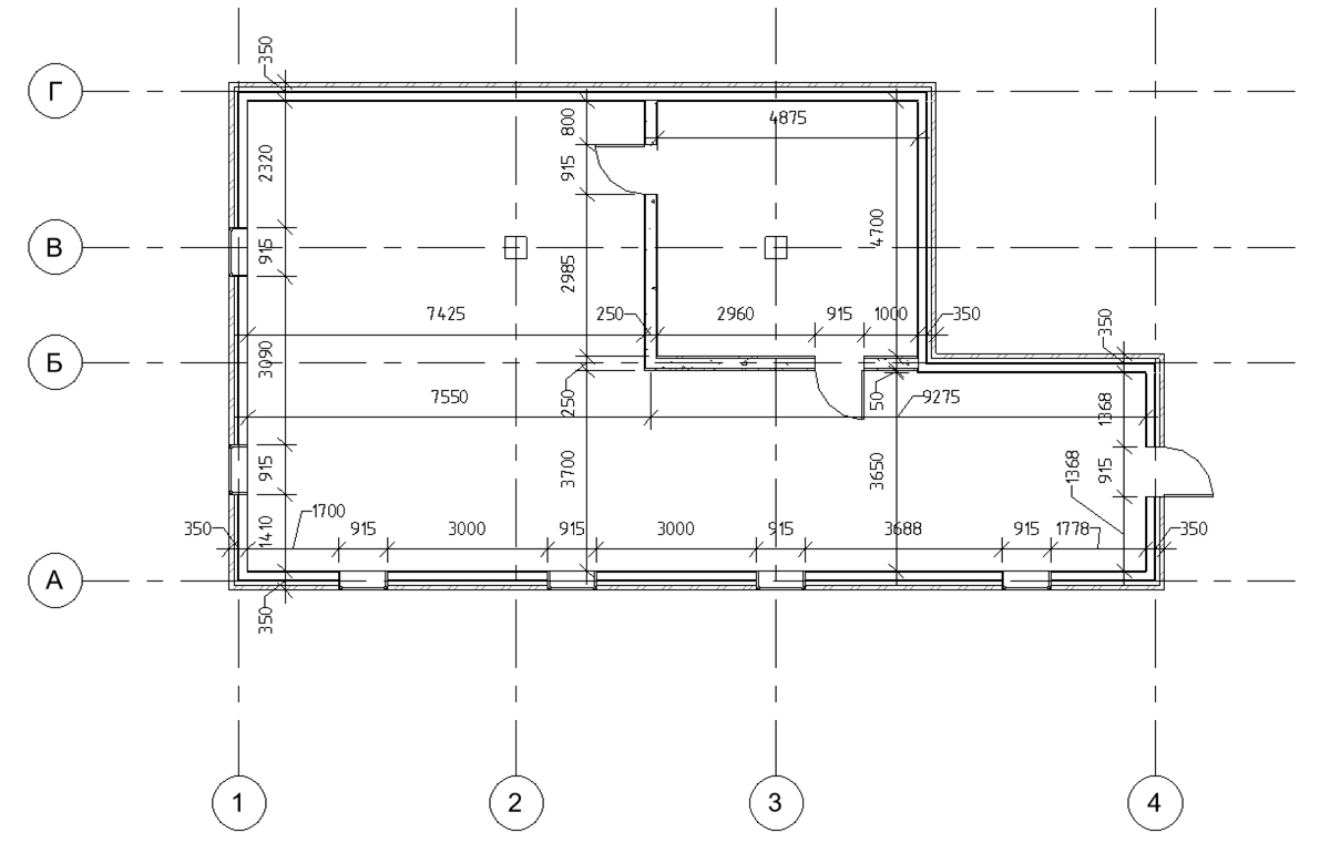
Después de la acotación con el complemento:


El complemento coloca cotas longitudinales y transversales de muros rectilíneos sin tener en cuenta su relación con otros muros.
La ventana de configuración contiene los siguientes controles:
Cota transversal por centro del muro – al activar esta opción se colocará una cota transversal en el centro del muro.
Asociar la cota transversal en el centro del muro al eje más cercano – al activar esta opción se creará una cadena de cotas adicional al eje más cercano. Si el eje atraviesa el muro, solo se colocarán las cadenas de cotas entre el muro y el eje.
Cota longitudinal de muro – al activar esta opción se colocará la cota longitudinal del muro.
Asociar la cota longitudinal del muro al eje más cercano – al activar esta opción se creará una cadena de cotas adicional al eje más cercano. Si el eje atraviesa el muro, solo se colocarán las cadenas de cotas entre el muro y el eje.
Procesar caras intermedias (huecos) – al activar esta opción se crearán cotas para los huecos del muro procesado.
Desfase de la cadena de cotas – define el desfase de la cadena de cotas respecto al borde del objeto.
Posición de cotas horizontales – define la colocación de las cotas horizontales (Abajo/ Arriba).
Posición de cotas verticales – define la colocación de las cotas verticales (Derecha/Izquierda).
Al activar las opciones de asociación de muros a ejes, es necesario seleccionar los muros junto con los ejes, que estarán disponibles en el filtro de selección de elementos.
Antes de la acotación con el complemento:

Después de la acotación con el complemento:


El complemento coloca cotas en los bordes exteriores del forjado y en los huecos del mismo.
La ventana de configuración contiene los siguientes controles:
Desfase de la cadena de cotas – define el desfase de la cadena de cotas respecto al borde del objeto.
Acotar caras exteriores – al activar esta opción se colocarán cotas en los bordes exteriores del forjado.
Asociar bordes exteriores a ejes – al activar esta opción se creará una cadena de cotas adicional al eje más cercano. Si el eje atraviesa el borde del forjado, solo se colocarán las cadenas de cotas entre el borde y el eje.
Acotar huecos – al activar esta opción se colocarán cotas para los huecos del forjado.
Asociar huecos a ejes más cercanos – al activar esta opción se creará una cadena de cotas adicional al eje más cercano. Si el eje atraviesa el hueco, solo se colocarán las cadenas de cotas entre el hueco y el eje.
Posición de cotas horizontales para huecos – define la colocación de las cotas horizontales para huecos (Abajo/Arriba).
Posición de cotas verticales para huecos – define la colocación de las cotas verticales para huecos (Derecha/Izquierda).
Al activar las opciones de asociación a ejes, es necesario seleccionar los forjados junto con los ejes, que estarán disponibles en el filtro de selección de elementos.
Antes de la acotación con el complemento:

Después de la acotación con el complemento:

pilares

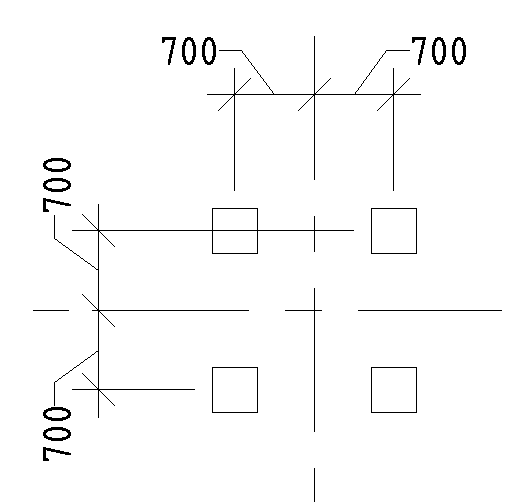
El complemento coloca cotas generales de columnas.
La ventana de configuración contiene los siguientes controles:
Asociar a ejes más cercanos – al activar esta opción se crearán asociaciones de las columnas a los ejes. Para ello, es necesario seleccionar las columnas junto con los ejes, que estarán disponibles en el filtro de selección de elementos.
Crear cota general al intersecar con ejes – al activar esta opción, además de las asociaciones a ejes, se crearán cotas generales de las columnas.
Desfase de la cadena de cotas – define el desfase de la cadena de cotas respecto al borde del objeto.
Posición de cotas horizontales – define la colocación de las cotas horizontales (Abajo/Arriba).
Posición de cotas verticales – define la colocación de las cotas verticales (Derecha/Izquierda).
Los ejes deben seleccionarse junto con las columnas si se requiere asociar las columnas a ellos.
Antes de la acotación con el complemento:

Después de la acotación con el complemento:


Esta parte del complemento coloca cotas posicionales de pilotes en relación con los ejes seleccionados. Esto significa que se colocarán cotas desde el centro del pilote hasta los ejes seleccionados más cercanos. El procesamiento de pilotes se realiza en grupos. Grupo de pilotes – pilotes situados cerca unos de otros.
La ventana de configuración contiene los siguientes controles:
Agregar un pilote a un grupo si la distancia desde el punto de inserción del pilote al punto de inserción … del grupo no supera … mm – define la lógica de formación de grupos de pilotes según su posición relativa.
Desfase de la cadena de cotas – define el desfase de la cadena de cotas respecto al borde del objeto.
Posición de cotas horizontales – define la colocación de las cotas horizontales (Abajo, Arriba).
Posición de cotas verticales – define la colocación de las cotas verticales (Derecha/Izquierda).
Solo se procesan familias de pilotes que pertenezcan a las categorías "Pilares estructurales" y "Cimentación estructural". 
Antes de la acotación con el complemento:

Después de la acotación con el complemento:
